9 500 000 Р 124 600 $ или 106 600

Информация об помещении

1
Этаж

Состояние и оснащение

Количество этажей
1
Развернуть
Агент
+7 (983) 326-16-78
Начать чат с агентом

Помещение свободного назначения в Алтай, Улаганский район, с. Чибит ...

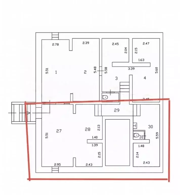
Арт.Новая база отдыхагг. постройки, на ровном земельном участке площадью 1.2 Га. Всего в 10 км от села Акташ Улаганского района республики Алтай и всего в 250 метрах от Чуйского тракта. Окружённая живописными пейзажами гор и горной реки, эта база предлагает уединение и спокойствие вдали от городской суеты. По соседству нет других туристических баз, что создает уникальную атмосферу. Вокруг - только горы, потрясающие виды и чистейший воздух Готовые домики позволяют сразу начать предоставление услуг по размещению, что сокращает время на подготовку и старт бизнеса.Экологически чистый материал (брус) создает комфортную атмосферу и привлекает клиентов, ценящих натуральные материалы.Наличие бани добавляет ценность объекту и предлагает дополнительные возможности для отдыха и оздоровления. Это может стать важным фактором для привлечения гостей.Баня может использоваться как для личного пользования, так и для организации дополнительных услуг для клиентов.Летняя кухня обеспечивает удобство для гостей, позволяя готовить еду на свежем воздухе и проводить совместные мероприятия, что делает отдых более приятным. Это также создает дополнительную привлекательность для семейных групп и компаний.Наличие всех необходимых коммуникаций (вода, электричество) позволяет избежать дополнительных затрат на их подключение и упрощает эксплуатацию объектов.Хозяйственные постройки могут использоваться для хранения инвентаря или оборудования, что увеличивает функциональность участка.Возможность быстрого расширения инфраструктуры за счет готового домокомплекта позволяет вам легко увеличить количество мест для размещения гостей и повысить доходность бизнеса. Это экономит время на проектирование и строительство новых объектов.

Читать полностью
    Позвонить Написать
    9 500 000 Р124 600 $ или 106 600
    Агент
    +7 (983) 326-16-78
    Начать чат с агентом
    Похожие предложения
    Помещение свободного назначения в Московская область, Сергиев Посад ... - Фото 1
    Помещение свободного назначения в Московская область, Сергиев Посад ... - Фото 2
    Арт.Продаётся помещение свободного назначения с отдельным входом с улицы в жилищном комплексе по адресу: г. Сергиев Посад, ул. 1-ой Ударной Армии, д.95ПОМЕЩЕНИЕ Площадь: 67,7 м Этаж: -1 (цоколь с полноценным входом), витринные панорамные окна. Отдельный...
    • -1/19 эт.
    9 600 000 Р
    Агент
    +7 (923) Показать номер
    Посмотреть контакты
    Продажа ПСН, Варениковская, Крымский район, ул. Стаханова - Фото 1
    Продажа ПСН, Варениковская, Крымский район, ул. Стаханова - Фото 2
    Продажа ПСН, Варениковская, Крымский район, ул. Стаханова - Фото 3
    Продажа ПСН, Варениковская, Крымский район, ул. Стаханова - Фото 4
    Продажа ПСН, Варениковская, Крымский район, ул. Стаханова - Фото 5
    Продажа ПСН, Варениковская, Крымский район, ул. Стаханова - Фото 6
    Продажа ПСН, Варениковская, Крымский район, ул. Стаханова - Фото 7
    Продажа ПСН, Варениковская, Крымский район, ул. Стаханова - Фото 8
    Продажа ПСН, Варениковская, Крымский район, ул. Стаханова - Фото 9
    Продажа ПСН, Варениковская, Крымский район, ул. Стаханова - Фото 10
    Продажа ПСН, Варениковская, Крымский район, ул. Стаханова - Фото 11
    Продажа ПСН, Варениковская, Крымский район, ул. Стаханова - Фото 12
    Продажа ПСН, Варениковская, Крымский район, ул. Стаханова - Фото 13
    Продажа ПСН, Варениковская, Крымский район, ул. Стаханова - Фото 14
    общая площадь 200м², полезная площадь 200м²

    Продам помещение свободного назначения (использовалось как общежитие) 200 кв. м. + 26.2 сотки земельный участок ( в собственности) межевание сделано Электричество заведено, водопровод центральный, отопление печное (газ по меже) 9 комнат изолированных.Помещение...
    • 200 м²
    • 1-й эт.
    9 500 000 Р
    Агент
    +7 (918) Показать номер
    Агентство
    Золотая Арка
    Посмотреть контакты
    Продажа ПСН, Крымск, Крымский район, ул. Союзная - Фото 1
    Продажа ПСН, Крымск, Крымский район, ул. Союзная - Фото 2
    Продажа ПСН, Крымск, Крымский район, ул. Союзная - Фото 3
    Продажа ПСН, Крымск, Крымский район, ул. Союзная - Фото 4
    Продажа ПСН, Крымск, Крымский район, ул. Союзная - Фото 5
    Продажа ПСН, Крымск, Крымский район, ул. Союзная - Фото 6
    Продажа ПСН, Крымск, Крымский район, ул. Союзная - Фото 7
    Продажа ПСН, Крымск, Крымский район, ул. Союзная - Фото 8
    Продажа ПСН, Крымск, Крымский район, ул. Союзная - Фото 9
    Продажа ПСН, Крымск, Крымский район, ул. Союзная - Фото 10
    Продажа ПСН, Крымск, Крымский район, ул. Союзная - Фото 11
    Продажа ПСН, Крымск, Крымский район, ул. Союзная - Фото 12
    Продажа ПСН, Крымск, Крымский район, ул. Союзная - Фото 13
    Продажа ПСН, Крымск, Крымский район, ул. Союзная - Фото 14
    Продажа ПСН, Крымск, Крымский район, ул. Союзная - Фото 15
    Продажа ПСН, Крымск, Крымский район, ул. Союзная - Фото 16
    Продажа ПСН, Крымск, Крымский район, ул. Союзная - Фото 17
    общая площадь 175.7м², полезная площадь 175.7м²

    Это прекрасное предложение для владельца бизнеса, который ищет подходящее место для кафе или магазина! На проезжей улице Новороссийская в городе Крымске Краснодарского края расположено отдельно стоящее коммерческое строение в нежилом фонде. Общая...
    • 175.7 м²
    • 1-й эт.
    9 500 000 Р
    Агент
    +7 (960) Показать номер
    Агентство
    Золотая Арка
    Посмотреть контакты
    Помещение свободного назначения в Пензенская область, Пензенский ... - Фото 1
    Помещение свободного назначения в Пензенская область, Пензенский ... - Фото 2
    Продается помещение 61кв.м в Спутнике.Срок Сдачи: 4кв. 2026г.Помещение в черновой отделке.Выходит на Первую Линию.Находится в густонаселённом районе, большой и развивающийся район.Большой пешеходный трафик. Помещение подойдет как для видения бизнеса,...
    • 1/18 эт.
    9 529 900 Р
    Агент
    +7 (950) Показать номер
    Посмотреть контакты
    Помещение свободного назначения в Свердловская область, Екатеринбург ... - Фото 1
    Помещение свободного назначения в Свердловская область, Екатеринбург ... - Фото 2
    Атлас Визион — жилая экосистема комфорт-плюс класса, состоящая из девяти башен переменной этажности. Комплекс включает подземный и наземный паркинги, детский сад на 150 мест и пешеходную аллею с необходимой коммерческой инфраструктурой. Уникальное преимущество...
    • 2/31 эт.
    9 422 400 Р
    Агент
    +7 (982) Показать номер
    Посмотреть контакты

    Не нашли подходящего объявления?

    Оставьте заявку, и наши риэлторы подберут псн в районе Чибита

    (0)