Реализация объекта недвижимости приостановлена

Информация о квартире

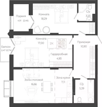
83.0 м2
Площадь
3
Комнаты
4
Этаж
7
Этажность
Развернуть

3-к кв. Алтай, Майминский район, с. Майма ул. Энергетиков (83.93 м)

Продаётся 3-комнатная квартира в строящемся доме (Корпус 7), срок сдачи: IV-кв. 2029, общей площадью 83.93 кв.м., на 4 этаже. Новый жилой комплекс Катунский промузел от Специализированного застройщика ГОРНЫЙ ГЕКТАРасположен по адресу: с. Майма, по ул. Энергетиков.

Читать полностью

    Реализация объекта недвижимости приостановлена

    Не нашли подходящего объявления?

    Оставьте заявку, и наши риэлторы подберут квартиру в новостройке в районе Маймы

    (0)