Реализация объекта недвижимости приостановлена

Информация о квартире

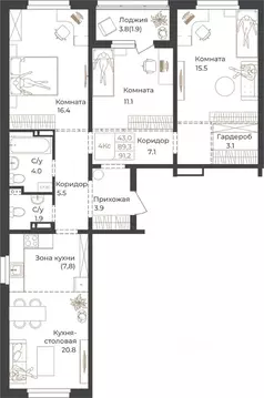
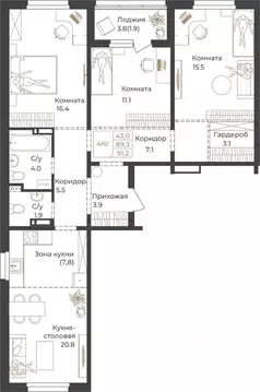
91.0 м2
Площадь
3
Комнаты
1
Этаж
10
Этажность

Дополнительная информация

Тип дома
блочный
Развернуть

3-к кв. Алтай, Горно-Алтайск Дом 1824 жилой комплекс (91.2 м)

Продаётся 3-комнатная квартира в строящемся доме ( Блок секция 1), срок сдачи: IV-кв. 2028, общей площадью 91.2 кв.м., на 1 этаже. Новый жилой комплекс расположен в г. Горно-Алтайск по ул. Социалистическая.

Читать полностью

    Реализация объекта недвижимости приостановлена

    Не нашли подходящего объявления?

    Оставьте заявку, и наши риэлторы подберут квартиру в новостройке в районе Горно-Алтайска

    (0)