Реализация объекта недвижимости приостановлена

Информация о квартире

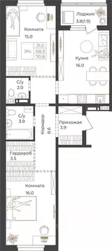
70.0 м2
Площадь
2
Комнаты
6
Этаж
10
Этажность

Дополнительная информация

Тип дома
блочный
Развернуть

2-к кв. Алтай, Горно-Алтайск Социалистическая ул., 82 (70.5 м)

Продаётся 2-комнатная квартира в строящемся доме ( Блок секция 2), срок сдачи: IV-кв. 2028, общей площадью 70.5 кв.м., на 6 этаже. Новый жилой комплекс расположен в г. Горно-Алтайск по ул. Социалистическая.

Читать полностью

    Реализация объекта недвижимости приостановлена

    Не нашли подходящего объявления?

    Оставьте заявку, и наши риэлторы подберут квартиру в новостройке в районе Горно-Алтайска

    (0)